Каминная топка Hitze Albero Aquasystem ALAQS54x39.G-D (Black/Silver)

Тип
каминная топка
Расположение
встроенная
Топливо
дрова

38149лей

Код товара:
5568111
Склад
Нет на складе Romania ⛟
Гарантия:
24 месяцев

Подъем товара на этаж в момент доставки до 30 кг - БЕСПЛАТНО!

Дополнительные характеристики
Топки с водяным контуром: да
Класс энергоэффективности: A+
Диапазон мощности: 5-13.5 кВт
Мощность водяного контура: 3.5 кВт
Входной диаметр: 125 мм
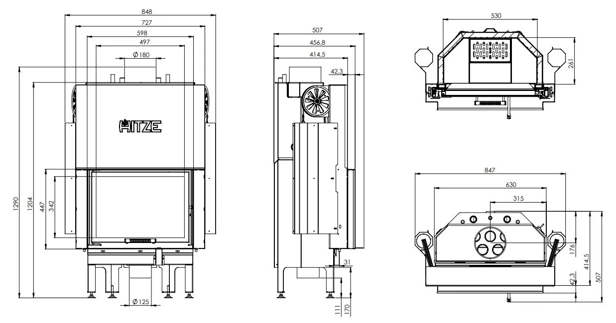
Размер стекла: 540x390 мм
Размеры (ШхВхГ): 848x1290x507 мм
Вес: 198 кг

Модель:
Albero Aquasystem ALAQS54x39.G-D (Black/Silver)
Производитель:
№:
A0D0CD7A2

Основные характеристики

Тип
каминная топка
Расположение
встроенная
Топливо
дрова
Диаметр дымохода (мм)
180
Подключение к дымоходу
верхнее
Толщина стенок топки (см)
0.4
Эффективность КПД (%)
82

Материалы и исполнение

Материал
сталь
Материал дверцы
термостойкое стекло

Питание и мощность

Мощность (кВт)
10
🔽 Показать все характеристики